MY/ARCHITECT
SERVICES FOR
RENOVATIONS

My/Architect provides comprehensive services to guide homeowners through the home extension and renovation process. From 3D LiDAR scanning to construction project management, all our services are structured to provide exemplary professional assistance on a range of project types and budgets.

MEASURED BUILDING SURVEY

DESIGN & PLANNING

BUILDING REGULATIONS

INTERIOR DESIGN

OTHER PROFESSIONALS

SCOPE OF WORKS & TENDER

PROJECT MANAGEMENT

Book Consultation

MEASURED BUILDING
SURVEY

SERVICE: MEASURED BUILDING SURVEY

A measured building survey is required to start the design of the project prior renovations. Your architect visits your home and take measurements of the entire property using 3D scanners, laser measurers and tape measures to record the dimensions of the property to the nearest millimeter. Recordings of material finishes, wall and floor finishes, door opening directions, window dimensions, floor to ceiling heights, locations of external rainwater and soil pipes, inspection chambers to sewers, manhole covers, and garden dimensions are also recorded.

PRODUCT: EXISTING SURVEY DRAWINGS

A scaled set of 1:100 drawings of the existing property that captures all of the information recorded in the measured building survey service. Drawings to be expected include: plans, sections and elevations of the entire property within the property’s boundary lines. 

PROFESSIONAL IN CHARGE: My/Architect

My-Architect records and prepares all of this information in house as part of our survey, design and planning service.

DESIGN & PLANNING

SERVICE: PLANNING DESIGN & APPLICATION

Planning applications require research, site analysis, using online resources on the local authority website to conduct desktop studies. Following that, the professional in charge determines what is likely or not to receive approval by analysing local and national planning policies and analysing what’s been approved or not in the area. They guide the client through the design process to determine what planning application type is appropriate, likely to receive planning approval and responds to their design and budget expectations.

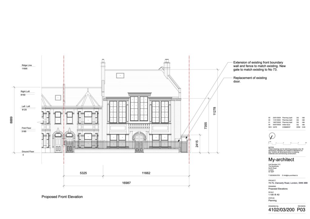
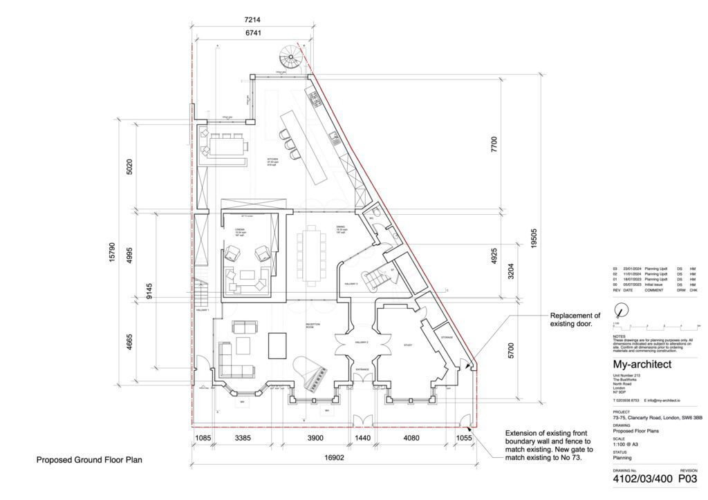
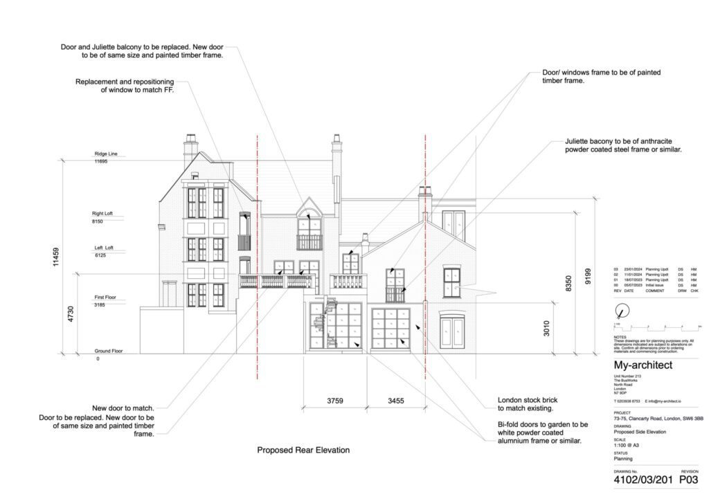
PRODUCT: PLANNING DRAWINGS & APPROVAL

1:100 scaled general arrangement drawings of the property with the proposal of the new extension, refurbishment or loft incorporated into the plans, sections and elevations. Also included for a planning application is usually a location plan and a block plan and the relevant forms completed on the planning portal.

PROFESSIONAL IN CHARGE: My/Architect

Planning requires the preparation of all the documents listed previously. The application usually takes between 10 to 12 weeks and costs between £103 to £206 to the council. To have a smooth and successful planning application, monitoring, chasing updates and amendments is highly recommended.

My-Architect prepares all these documents in house on behalf of the client for the planning application and typically acts as the client agent until planning approval.

BUILDING REGULATIONS AND
TECHNICAL DESIGN

SERVICE: BUILDING REGULATIONS & TECHNICAL DESIGN

The building regulations are a minimum set of design and safety criteria that every property development project in the uk has to adhere to. The process of enforcing these regulations is coordinated between the design team and the builder.

For home renovations and extensions projects, clients have two paths available to them to ensure their project adheres to the building regulations. First is a full plans application, usually to a building control officer at the council or an approved inspector. Or a building notice using an approved inspector or the builder directly. Both options usually require preparing relevant drawings (structural engineering/technical drawings) which are either submitted for building control approval at the council or issued to the builder prior to construction starting who would issue a building notice to the council on the client’s behalf. On the majority of home extensions you don’t need to submit a full plans application, and a building notice submitted directly by either the Client, approved inspector or the builder will suffice.

PRODUCT: BUILDING REGULATIONS DRAWINGS

Building regulations drawings are architectural drawings providing technical details relating to the building regulations. This includes but is not limited to fire safety, falling from height and thermal performance of the proposal.

The building regulations drawings are not mandatory. My/Architect recommends it when :

  • The contractor might need it.
  • If you are changing something substantially. 
  • If the council is doing building control approval.

When a private approved inspector takes care of the building control, which is a little more expensive, drawings may not be necessary.

PROFESSIONAL IN CHARGE: MY/ARCHITECT

The structural engineer or architect can take care of the building control. 

At My/Architect, your architect will produce all the relevant building regulations drawings in-house

INTERIOR DESIGN
& STYLING

SERVICE: INTERIOR DESIGN & STYLING

Interior design on home renovation and extension projects is the process of curating a specific “atmosphere” within a space or sequence of spaces throughout a building. To achieve this an “interior designer” helps a Client with design details and material choices for everything from furniture and flooring to kitchen supplier and lighting design. It covers a range of disciplines and costs depending on the Client’s budget, design aspirations and tastes.

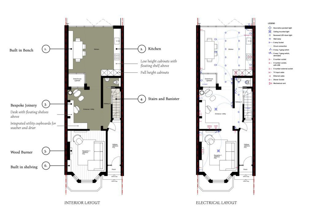
PRODUCT: 3D VISUALS, MOOD BOARDS & LIGHTING LAYOUTS

An interior designer produces a range of different products to help a Client visualise their design. This includes detailed design drawings, plumbing and electrical layouts, mood boards, collages, models and 3D renders. In some instances interior designers will even take Clients to show rooms, manufacturing plants and present different product choices to them.

PROFESSIONAL IN CHARGE: MY/ARCHITECT

As Interior Design is an unregulated industry, anyone can call themselves an interior designer and anyone can provide interior design services. As interior design is not essential but useful, if a Client wishes to save money, they themselves can do most of the interior design work using online tools like Pinterest or Sketchup. Alternatively they can ask for help from their architect or builder with making interior design decisions. 

At My-architect we help homeowners with internal layouts and material choices during the design and tender process which is included in our design fees. If a Client wishes for more services as outlined above we have interior designers in our network that can help.

THIRD PARTY
PROFESSIONALS

My/Architect maintains an extensive network of third-party professionals, ensuring comprehensive support for homeowners undertaking renovations. This network includes structural engineers, party wall surveyors, approved inspectors, planning consultants, and heritage consultants. Each professional brings specialised expertise, crucial for the seamless integration of all necessary services throughout the design and construction phases.

Structural engineers are essential for analysing and approving the integrity of building designs, ensuring safety and stability. Party wall surveyors manage disputes and agreements related to shared walls, mitigating potential conflicts between neighbours. Approved inspectors offer independent assessment services, ensuring compliance with building regulations without delay. Planning consultants navigate the complexities of planning permissions and regulations, providing strategic advice to align projects with local and national requirements. Heritage consultants are invaluable for projects involving historic buildings, offering guidance to preserve architectural heritage while meeting modern standards.

By connecting homeowners with these professionals at appropriate stages, we ensure that all aspects of a project are meticulously planned and executed. This integrated approach not only enhances the design process but also mitigates risks, reduces delays, and ensures compliance with all legal and regulatory requirements. Our network fosters a collaborative environment, allowing for innovative and sustainable solutions tailored to the unique needs of the London home renovation market.

SCOPE OF WORKS
& TENDER

Our scope of works and tendering service is designed to assist London homeowners in obtaining like-for-like quotes from our network of thoroughly vetted contractors. We ensure that homeowners receive competitive and comparable quotations by providing detailed and precise scopes of work for their renovation projects.

We meticulously vet builders, checking their years in business, insurance coverage, membership in professional bodies like the Federation of Master Builders, and performing rigorous reference and workmanship checks on-site. This thorough vetting process guarantees that only reliable and skilled contractors are recommended.

Our tender process guides homeowners through a structured and transparent selection process. Initially, we identify a shortlist of five potential builders. We then assist homeowners in evaluating these candidates, narrowing the selection down to the most suitable contractor. Throughout this process, we provide expert advice and support, ensuring that homeowners make informed decisions.

Once the ideal builder is selected, we help homeowners sign a comprehensive contract that includes crucial elements such as retention fees, stage payments, and contingencies. This ensures that all aspects of the project are clearly defined and agreed upon, reducing the risk of misunderstandings and financial surprises.

Our tendering service not only simplifies the process of finding and hiring a contractor but also ensures that homeowners receive quality workmanship and value for their investment.

BUILDING REGULATIONS AND
TECHNICAL DESIGN

Our project management service is designed to offer London homeowners a flexible range of support options as their renovation projects move to the construction phase. Whether clients prefer to manage their projects independently or seek comprehensive assistance, we provide tailored solutions to meet their needs.

For those who wish to run their projects themselves, we offer a comprehensive email outlining all critical items to be aware of, ensuring they are well-prepared to oversee the work. This self-management option allows homeowners to take full control while still benefiting from our professional insights.

For clients seeking occasional support, we offer monthly site visits with follow-up assistance. This includes providing additional design guidance and addressing any emerging issues, ensuring the project stays on track with professional oversight.

Our formal project management service provides a higher level of involvement, with weekly site visits and detailed written and photographic updates. These updates document the progress made, identify upcoming tasks, and highlight any potential concerns. This proactive approach helps to ensure, where possible, that the project is delivered on time and within budget.

It is important to note that the contract for project delivery remains between the builder and the client. My/Architect is there to provide assistance, maintain a record of progress, and offer impartial advice, but we do not assume contractual responsibility for the project’s timely and budgeted completion.